Catskills Residence
- Année
- 2024
- Localisation
- Margaretville, New York
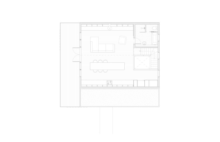
Perched on a mountainside in Margaretville, the Catskills Chalet blends harmoniously into the surrounding forest, offering a unique experience for gathering and enjoying the protected territory that surrounds it. Its living spaces, at once warm and functional, are designed to comfortably accommodate the cottage’s owners, while also being adapted for frequent visitors and guests. Just a few hours from New York City, the house has been designed as a soothing refuge, enabling a deep connection with nature, far from all the noise of the fast-paced city.
“The experience and hospitality enabled by the spaces we create is always a key element in our design approach. In this residence, it was only natural that the views from the upper floor be visible from common spaces to promote connection with the outside environment and enrich the day-to-day experience of group living ”




















