Skip to content
Projects
Index
Vision
About us
Contact
Fr
Projects
Index
Vision
About us
Contact
Fr
Projects
Index
Projects
Index
Vision
About us
Contact
Vision
About us
Contact
Fr
Fr
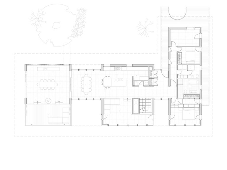
Charlevoix Residence
Year
2022
Credits
Projets similaires
Pied-de-vent residence
La Breche House
Gouin Residence
Bordeaux Residence
Micro-cabine Méandre
Des Cascades Residence