Des Rapides Residence
- Année
- 2024
- Localisation
- Mont-Tremblant, QC
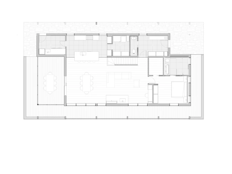
In Tremblant, nestled along the winding paths of the Rivière du Diable, lies the Rapides Residence. From the street, its discreet silhouette conceals a striking two-story structure that unfolds at the rear, revealing breathtaking views of the Laurentians and the river below. The home presents two distinct faces: a modest, reserved frontage along the access road and a dramatically open rear façade that embraces the vastness of the surrounding landscape.
« Beyond covering the surfaces with wood, we wanted to work with this noble material in all its diversity, using its structural properties for the framework, playing with its nuances to create a unique exterior language, and diffusing its warmth in every nook and cranny of the house »
Credits
Entrepreneur
Fairfield Construction, Larix Construction
Collaborateur
Roland Grenier Construction, Daniel Casaubon (Cabinetmaker)
Fournisseur
Luminaire Authentik (lightings), Alumilex (Windows)
Mobilier
Appareil Atelier (Elsie Chair, Floe Stool )
Photographe
Felix Michaud














