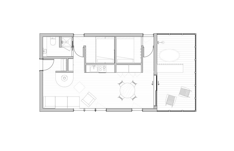
Micro-cabine Méandre
- Année
- 2024
- Localisation
- La Tuque, QC
- Superficie
- +/- 600 ft2
Developed during the pandemic, the Micro-Cabine project is a small-scale cottage that takes into account its ecological footprint, blending strategies of scale and prefabrication to provide architectural thinking and resource-saving construction methods when designing living spaces in nature.
The modules are prefabricated, with pile foundations that generate a minimal footprint on the ground, thus respecting its surrounding environment. The only additions to the site are some finishing touches and the installation of the roof to complete the micro-cabine.
Credits
Entrepreneur
Atelier Mabarak
Fournisseur
Noréa Foyers (Stove)
Photographe
Félix Michaud











