Chalet Vieux Pont
- Année
- 2025
- Localisation
- Laurentides, QC
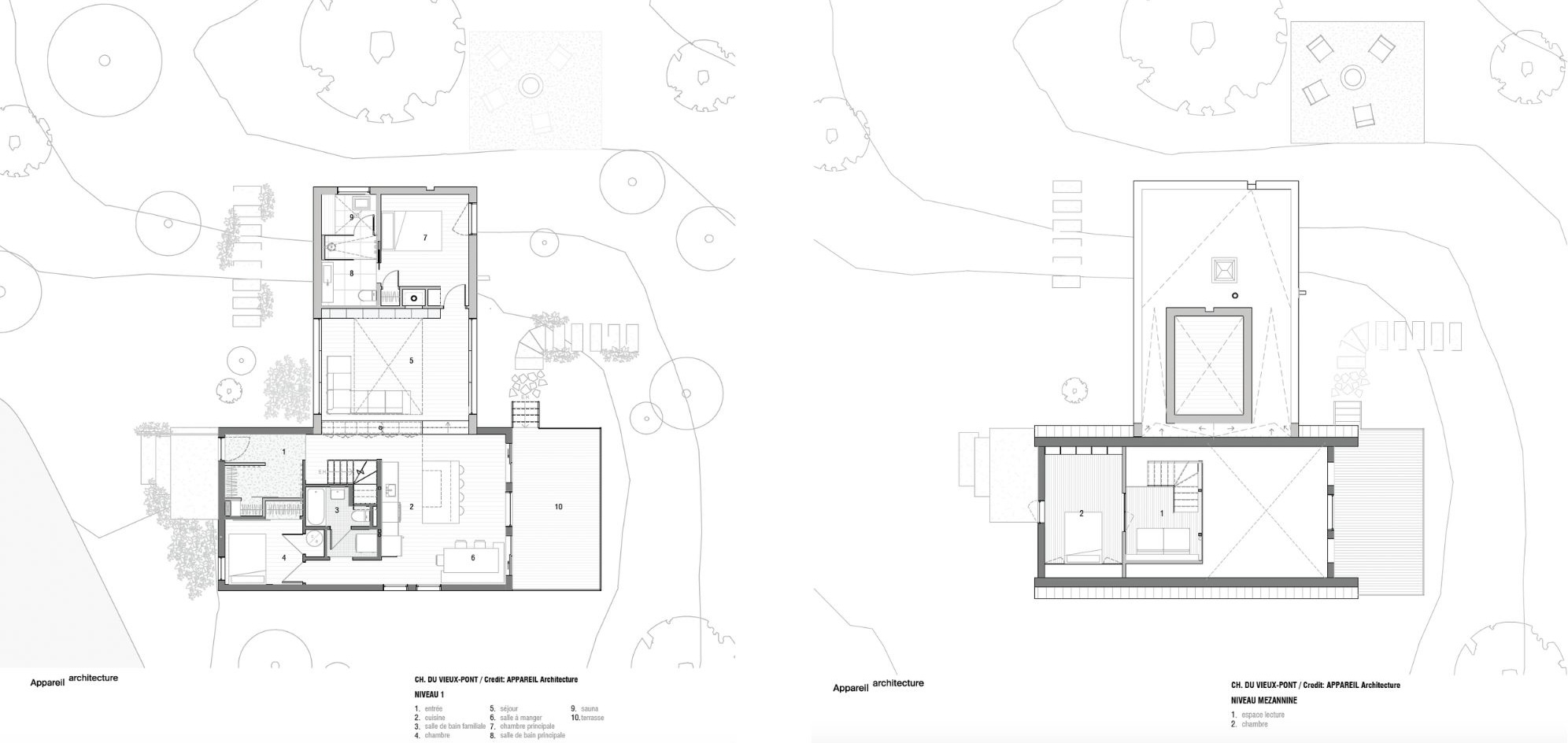
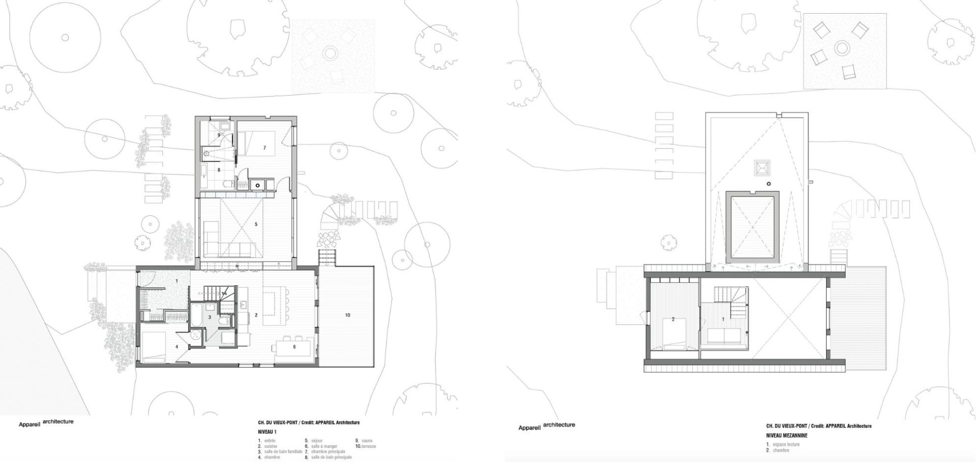
Implanté en bordure de rivière, ce chalet de ski familial s’inscrit dans son paysage naturel. L’extension permet d’augmenter la superficie habitable en intégrant une suite parentale complète — chambre, salle de bain et sauna — tout en conservant une lecture claire et fluide des espaces.
Baignée de lumière, elle abrite un nouvel espace de vie pensé pour la détente et les rassemblements familiaux autour d’un feu de foyer. Le sauna prolonge naturellement l’expérience après-ski, offrant un moment de bien-être. Les ouvertures généreuses cadrent la rivière et la forêt, faisant du site un élément central de l’expérience habitée.
« L’espace créé est généreusement fenestré et lumineux, nous offrant une vue splendide sur la nature. Nous profitons pleinement de ce lieu spacieux et confortable qui fut l’objet d’une belle et longue réflexion avec la firme »
Emilie et François-Nicolas, propriétaires de la résidence

« Le défi était d’intégrer un nouveau volume à une petite maison sur pilotis dans le but d’en agrandir l’aire de vie et d’offrir une chambre et une salle de bain supplémentaires.
Kim et son équipe ont relevé ce défi avec brio, tant et si bien qu’on a l’impression que la maison a toujours été ainsi. »
Emilie et François-Nicolas, propriétaires de la résidence








