The l'Etincelle School
- Année
- 2023
- Localisation
- Saguenay, QC
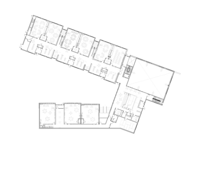
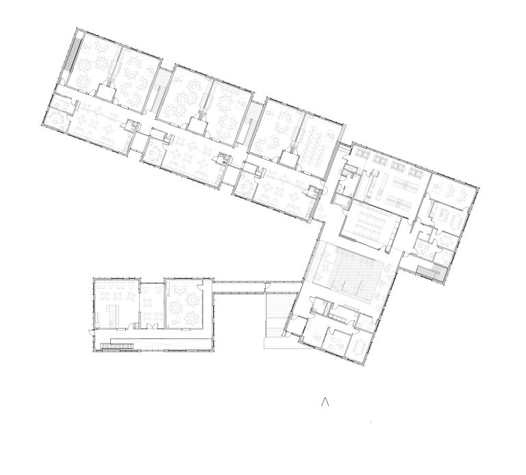
Located at the heart of Joachim Park in the Chicoutimi district of Saguenay, école de l’Étincelle is a shining example of architecture that is firmly rooted in its context. The architectural approach aims to deconstruct the conventional school, a traditionally institutional building, and transform it into a friendly, accessible, and welcoming environment for children; to build structures at their scale, to break down the complex school into readable spaces with various reference points. The characteristic educational approach of the school influenced the project, creating a reassuring and familiar architecture. The school’s primary mission is to create a calming and reassuring atmosphere that will encourage students to love school and feel comfortable, just like at home.
Awards
“A spark is the light that can give birth to great fires, great changes, and great dreams. From a simple spark, anything can happen! Our spark has allowed us to create an environment in which students can develop into the best version of themselves!”
Mélanie Girard, the director of l’Étincelle school.

















