Study for the Lachine Maison de la Culture

Année
2023
Localisation
Montréal, QC

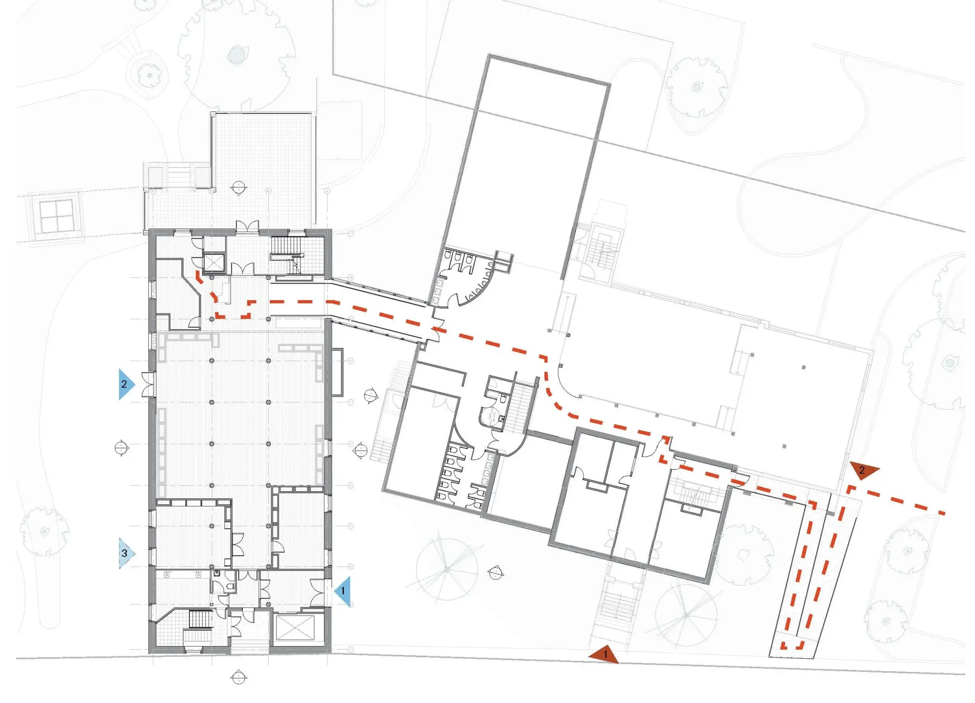
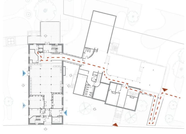
The current feasibility study aims to redefine public access to L’Entrepôt as the Maison de la Culture for the Lachine borough. Appareil Architecture is undertaking this mandate with the goal of reimagining, redesigning, or even relocating the entrance to enhance the user experience and support the objectives set forth by the City in its 2022–2030 Development Vision — particularly those outlined in its Cultural Centres Upgrade Program.

Option 1 : Front entrance

Option 2 : Back entrance

Projets similaires