Étude Maison de la culture de Lachine

Année
2023
Localisation
Montréal, QC

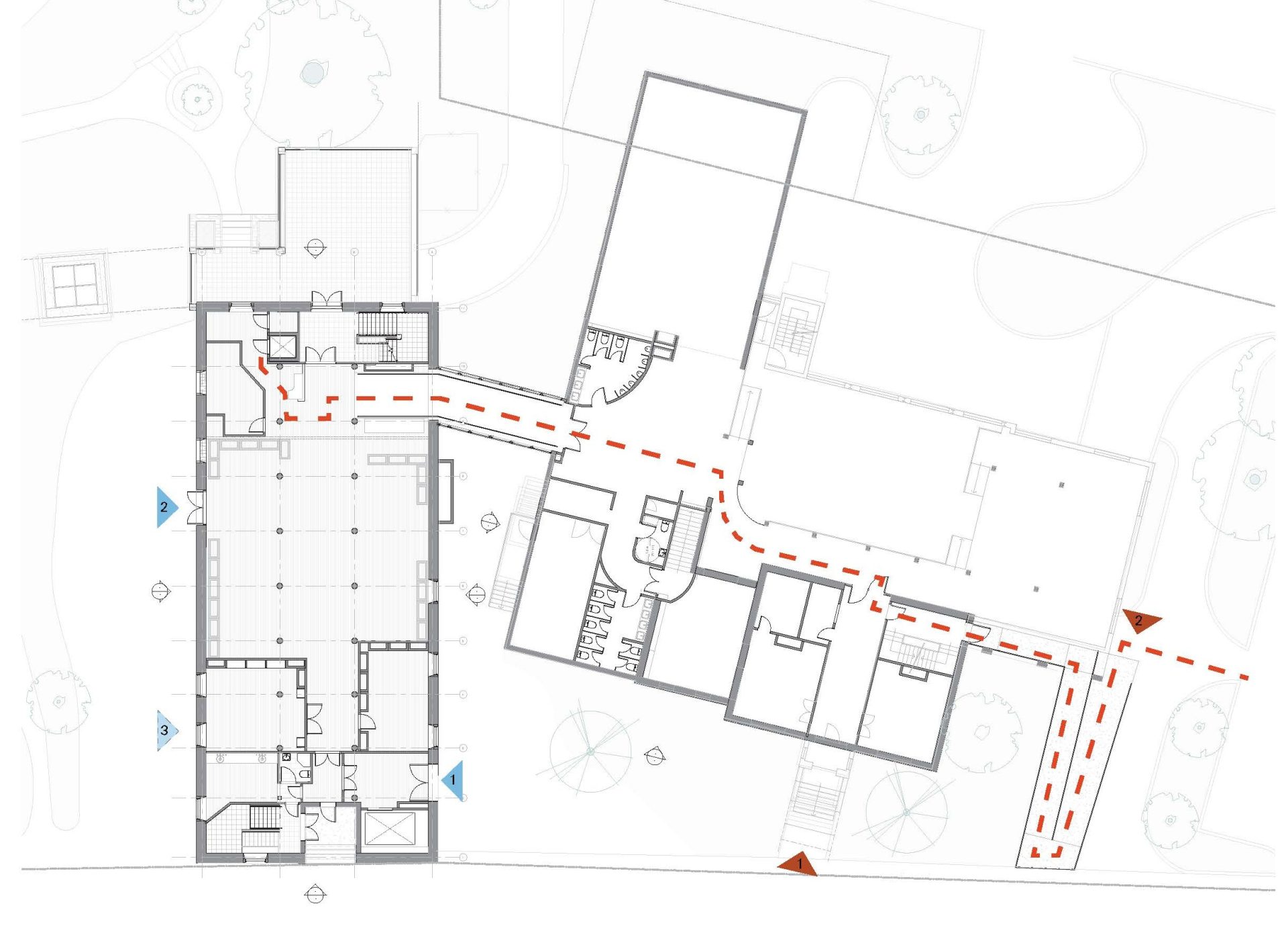
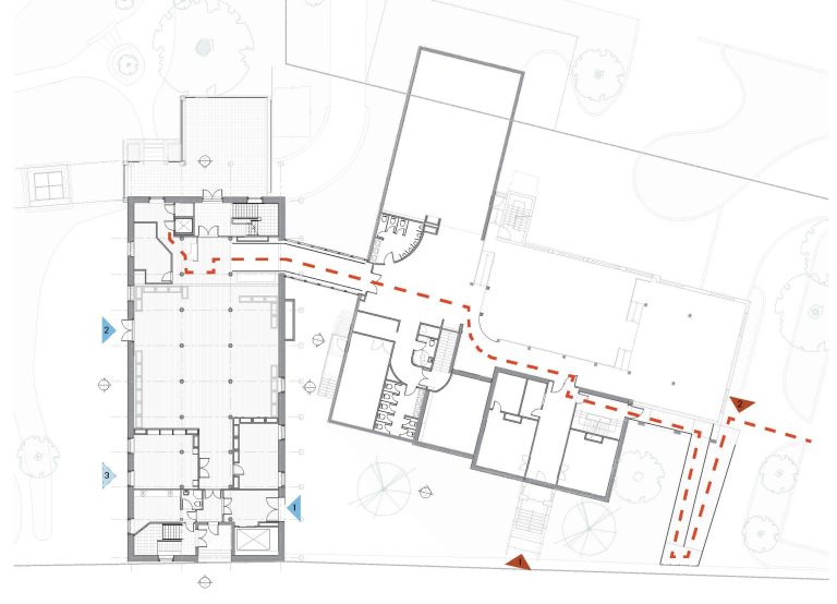
L’étude de faisabilité qui nous occupe vise à redéfinir l’accès du public à l’Entrepôt comme Maison de la Culture de l’arrondissement Lachine. Appareil Architecture entreprend ce mandat avec pour objectif de réimaginer, réaménager, voire relocaliser l’entrée, afin d’améliorer l’expérience des usagers et d’atteindre les objectifs que s’est donné la ville dans sa Vision de développement 2022-2030 et, plus particulièrement, ceux de son programme de mise à niveaux des Maisons de la Culture.

Option 1 : Entrée vers l'avant

Option 2 : Entrée vers l'arrière

Projets similaires