Antheia
- Année
- 2026
- Localisation
- Ottawa, CA
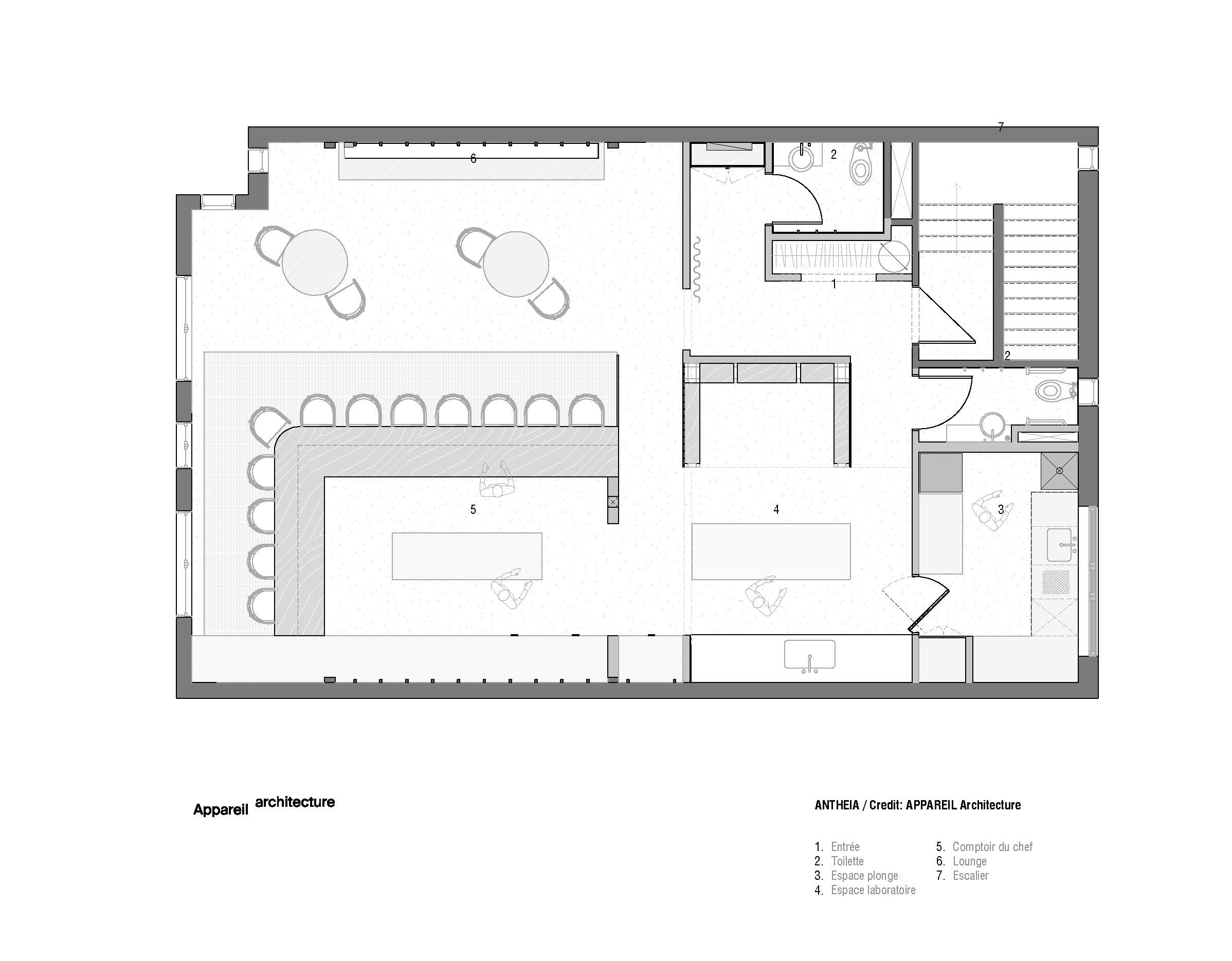
À Ottawa, ce lieu dédié à la fermentation redéfinit les codes de la restauration, entre gastronomie et prestation. Chaque détail immerge le visiteur au cœur du processus, où au comptoir principal, surélevé et rétroéclairé, la cheffe, Briana Kim, transforme l’acte culinaire en récit vivant.
L’espace privilégie une approche immersive et intime, invitant les convives à observer chaque geste. Ici, la fermentation n’est pas cachée : elle se révèle et se partage. Autour, une constellation de lieux prolonge le parcours : du salon feutré au laboratoire ouvert, chaque espace révèle un aspect de la transformation et invite à observer et échanger. L’univers singulier aux textures minérales et teintes naturelles se dévoile dès l’entrée, avec une sonnette discrète.
« Antheia a été conçu pour capturer des instants dans le temps, à travers la fermentation et la transformation.
Chaque élément de l’espace est intentionnel. La lumière chaleureuse, l’intimité du comptoir de seize places et la proximité du laboratoire de fermentation ont été soigneusement pensés pour orienter la manière dont les convives vivent le restaurant. J’ai profondément apprécié le processus de collaboration avec Appareil Architecture : ils ont su traduire ma vision avec une clarté et une retenue remarquables. »
– Cheffe Briana Kim









